代官山駅/徒歩3分
(ヴォーグ代官山Ⅱ)
飲食店から物販・美容サロン・ギャラリーなど幅広い業種にお勧め!
掲載日:2025年12月19日
更新日:2025年12月19日
物件連絡先
- 【会社名】株式会社beberise
- 【住 所】東京都港区赤坂6‐14‐3近文ビル6階
- 【電 話】03‐5544-8756
- 【FAX】03-4243-2577
- 【担 当】不動産事業部
- 【E-mail】eisen-h@bebe-g.com
- 【URL】- - -
- 【免許番号】東京都知事(3)第95377号
交通アクセス
【主路線】東急 東横線
【主要駅】代官山駅(徒歩3分)
【他路線】東京メトロ 日比谷線
【代替駅】恵比寿駅(徒歩7分)
【他路線】JR 山手線
【代替駅】渋谷駅(徒歩11分)
物件賃料
【賃 料】698,500円(税込)
【管理費】- - -
【敷 金】10ヶ月
【償 却】20%
【礼 金】1ヶ月
【造作譲渡料】- - -
物件ロケーション
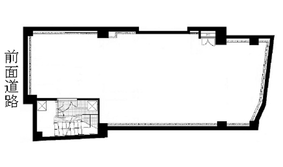
【住 所】東京都渋谷区代官山町 13‐4
【階 数】地下1階
<地図はこちら>
物件現状
【用途地域】- - -
【構 造】鉄筋コンクリート造
【専有面積】91.39m²(27.64坪)
【建物完成】1993年(築33年)
【現状詳細】スケルトン
【居抜物件】- - -
契約条件
【契約内容】定期借家
【取引態様】一般
【契約期間】相談年
【更新・再契約】1ヶ月
【保証会社】加入義務あり
【業者仲介】仲介不可
物件の特徴
- 飲食店から物販・美容サロン・ギャラリーなど幅広い業種にお勧め!
- 落ち着いた雰囲気の隠れ家のような物件です。
- 3路線利用可能な好立地です。
留意事項
- 図面と現状が異なる場合は原状を優先。
- 地図上の所在地に誤差が生じる場合あり。
- 記載の条件は予告なく変更する場合あり。
出店業態
以上が相談可

