西葛西駅/徒歩2分
(第2ツボイビル)
駅近物件!居抜き物件出ました。
掲載日:2025年12月14日
更新日:2025年12月14日
物件連絡先
- 【会社名】株式会社beberise
- 【住 所】東京都港区赤坂6-14-3近文ビル6F
- 【電 話】03-5544-8756
- 【FAX】03-4243-2577
- 【担 当】不動産事業部
- 【E-mail】eisen-h@bebe-g.com
- 【URL】- - -
- 【免許番号】東京都知事(3)95377
交通アクセス
【主路線】東京メトロ 東西線
【主要駅】西葛西駅(徒歩2分)
物件賃料
【賃 料】605,000円
【管理費】- - -
【保証金】8ヶ月
【償 却】解約時30%
【礼 金】2ヶ月
【造作譲渡料】- - -
物件ロケーション
【住 所】東京都江戸川区⻄葛⻄5 6-11
【階 数】1階
<地図はこちら>
物件現状
【用途地域】- - -
【構 造】鉄骨鉄筋コンクリート造
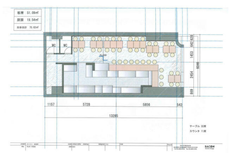
【専有面積】69.42m²(21坪)
【建物完成】1988年(築38年)
【現状詳細】飲食居抜き
【居抜物件】居抜き
契約条件
【契約内容】普通借家
【取引態様】一般媒介
【契約期間】2年
【更新・再契約】1.5ヶ月
【保証会社】加入義務あり
【業者仲介】仲介不可
物件の特徴
- グリストラップ及び 排⽔管洗浄、指定業者有
- 厨房部分はスケルトン渡
留意事項
- 図面と現状が異なる場合は原状を優先。
- 地図上の所在地に誤差が生じる場合あり。
- 記載の条件は予告なく変更する場合あり。
出店業態
以上が相談可

