虎ノ門駅/徒歩2分
(第3虎の門電気ビルディング)
虎ノ門徒歩2分!複数路線利用可能でアクセス良好な好立地です。
掲載日:2025年11月18日
更新日:2025年11月18日
物件連絡先
- 【会社名】株式会社beberise
- 【住 所】東京都港区赤坂6-14-3近文ビル6階
- 【電 話】03-5544-8756
- 【FAX】- - -
- 【担 当】不動産事業
- 【E-mail】eisen-h@bebe-g.com
- 【URL】- - -
- 【免許番号】東京都知事(3)第95377号
交通アクセス
【主路線】東京メトロ 銀座線
【主要駅】虎ノ門駅(徒歩2分)
【他路線】東京メトロ 千代田線
【代替駅】霞が関駅(徒歩6分)
物件賃料
【賃 料】615,692円(税込)
【管理費】87,956円(税込)
【敷 金】12ヶ月
【償 却】無し
【礼 金】- - -
【造作譲渡料】- - -
物件ロケーション
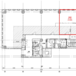
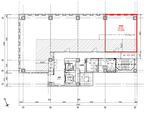
【住 所】東京都港区虎ノ門1 2-20
【階 数】11階
<地図はこちら>
物件現状
【用途地域】- - -
【構 造】- - -
【専有面積】66.08m²(19.99坪)
【建物完成】2013年(築13年)
【現状詳細】スケルトン
【居抜物件】- - -
契約条件
【契約内容】普通借家
【取引態様】一般媒介
【契約期間】2年
【更新・再契約】- - -
【保証会社】加入義務あり
【業者仲介】仲介不可
物件の特徴
- 虎ノ門駅徒歩2分!
- 複数路線利用可能!
留意事項
- 図面と現状が異なる場合は原状を優先。
- 地図上の所在地に誤差が生じる場合あり。
- 記載の条件は予告なく変更する場合あり。
出店業態
以上が相談可

